PennWood Home Design

At PennWood Builders we design most of the homes we build.  We view the design phase as a "pre-build".  By spending time designing the home, we in turn learn it inside and out.  The design phase also gives the home owner the ability to create and modify until they are satisfied with the plans of their dream home.   We use "state of the art software" that enables us to do floor plans, elevations, cross sections, and some very impressive 3D work that really gives the owner the true feel of how the house will look as well as how it will function.  Below are a few simple pictures depicting the process.

From a sketch on a dinner napkin...

napkin

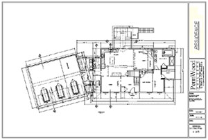
To Working Drawings....

floorplan

To 3D Renderings....

steve3d

PennWood Builders 2008 - Links - Home - Photos - Features - Design - Contractors - Sales - Contact